Enunciados de questões e informações de concursos

Prefeitura Municipal de Sorocaba
Questão 1 de 1
Assunto: Desenho Técnico

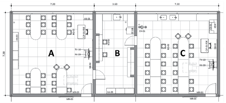
Considere o desenho a seguir, extraído de um Catálogo Técnico de Ambientes, produzido pela FDE (Fundação para o Desenvolvimento Educacional, de São Paulo), no qual são representados em planta três ambientes, A, B e C, a serem posicionados ao longo de um corredor, que estaria situado na parte inferior do desenho.

 

 

Considerando-se os símbolos e as convenções utilizados no desenho de projetos de edificações, é correto afirmar que os ambientes A, B e C



spinner
Ocorreu um erro na requisição, tente executar a operação novamente.