Enunciados de questões e informações de concursos

 

G. Cavalin e S. Cervelin. Instalações elétricas prediais. Editora Érica, 17.ª ed., São Paulo, 2007, p. 197 (com adaptações).


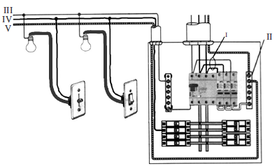
A figura acima ilustra um circuito de iluminação e o quadro de distribuição ao qual ele está ligado, todos pertencentes a uma instalação elétrica predial em baixa tensão. No quadro de distribuição destacam-se os barramentos e os condutores de fase (dois chegando ao quadro), neutro e de proteção, que interligam os barramentos. Com base nessas informações, julgue o item a seguir.

 

O esquema de conexões identificado na figura pelo número I é conhecido como dispositivo de proteção contra surtos (DPS).



spinner
Ocorreu um erro na requisição, tente executar a operação novamente.